|
|
![]()
|
|
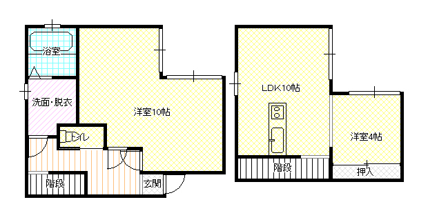
一戸建て住宅・オール電化
|
| 間取 | 2LDK | 賃料 | 75,000円 | ||||||||||||||||||||||||||||||
| 間取詳細 | 共用施設負担金 | ||||||||||||||||||||||||||||||||
| 区画/私道負担 | / | 敷金/礼金/敷引 | 2ヶ月/1ヶ月/ | ||||||||||||||||||||||||||||||
| 建物階 | 2階建 | 建物構造 | 木造 | ||||||||||||||||||||||||||||||
| 駐車場 | 2台/賃料込み | 建蔽率:容積率 | −:− | ||||||||||||||||||||||||||||||
| 交通手段 | 築年月/完成予定 | 2008年7月(築18年) | |||||||||||||||||||||||||||||||
| 引渡し日 | 2025年12月 | 取引形態 | 仲介 仲介手数料:82,500円 | ||||||||||||||||||||||||||||||
| 設備等 |
|
||||||||||||||||||||||||||||||||
| その他 | 保証料初回賃料等総額の50%、以後毎月830円必要・火災保険別途加入・サポートコール24要加入(2年16,500円) | ||||||||||||||||||||||||||||||||
| 情報登録日 | 2025年11月06日 | 次回更新予定 | 随時 | ||||||||||||||||||||||||||||||
印刷
|
お問い合わせ
|
BACK
|










一戸建て住宅・オール電化












印刷
お問い合わせ
BACK